
+7 925 900-69-60
sb@contegra.ru
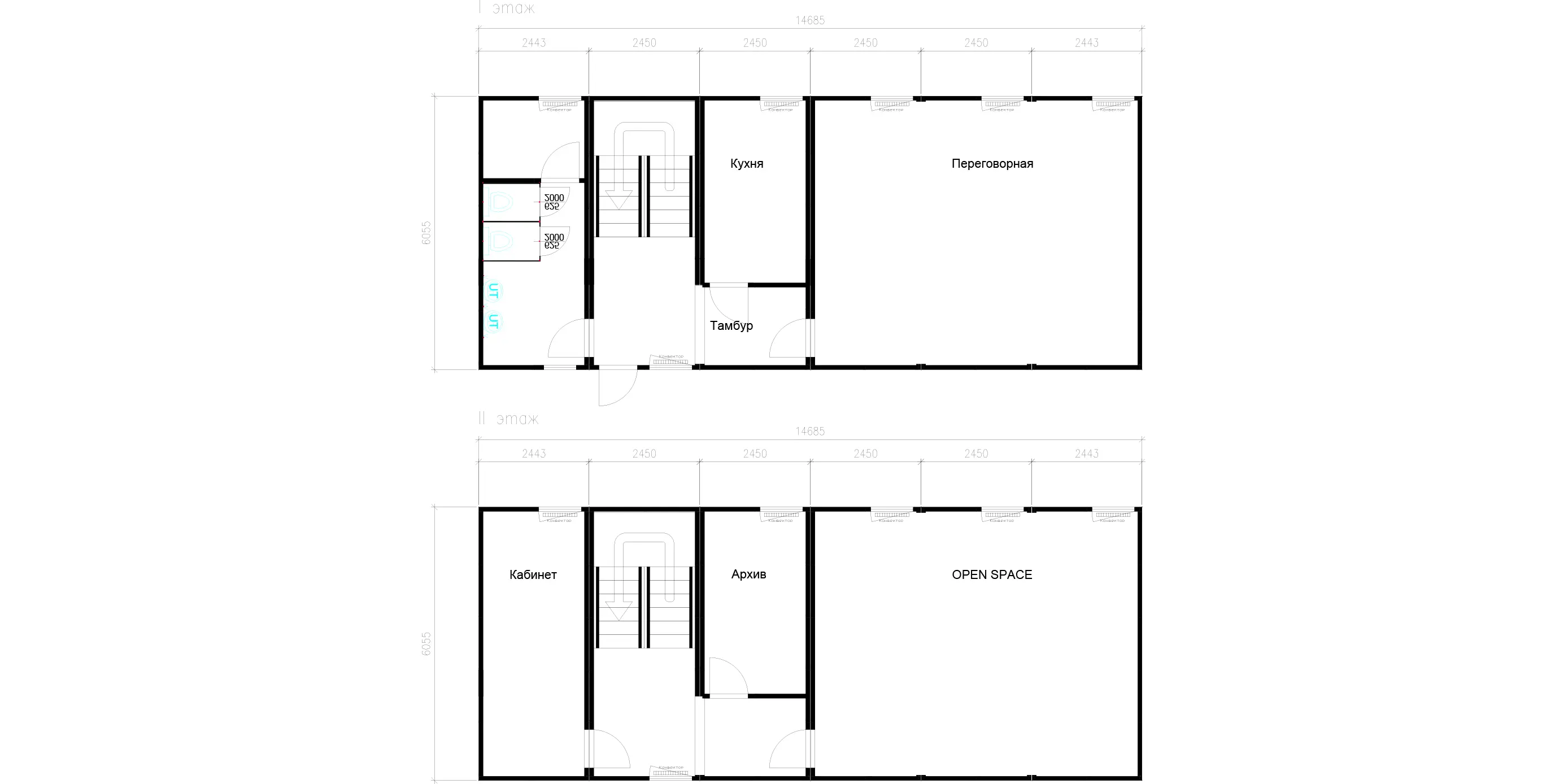
Модульный штаб строительства Контейнекс выполнен из 12 сборно-разборных блок-контейнеров в двухэтажном исполнении. Здание рассчитано на размещение 20 сотрудников инженерно-технического персонала и включает переговорную, кабинеты руководителей, санитарные помещения и внутреннюю лестницу, обеспечивая комфортную и функциональную рабочую среду.
✅ Основные характеристики:
– Вместимость: до 20 сотрудников
– Этажность: 2 этажа
– Общая площадь: 177 м²
– Количество модулей: 12 блок-контейнеров Контейнекс
– Планировка: кабинеты руководителей, рабочие помещения ИТР, переговорная, туалеты, кухня
– Лестница: внутренняя металлическая с перилами
– Инженерные системы: отопление, вентиляция, освещение, водоснабжение, канализация и электрика по европейским стандартам
✅ Преимущества решения:
– Полная заводская готовность — монтаж в течение 5–7 дней
– Компактное двухэтажное исполнение при сохранении функциональности
– Энергоэффективная теплоизоляция и современная отделка помещений
– Возможность демонтажа, транспортировки и повторной сборки без потери качества
– Прочная конструкция с порошковым покрытием и нанокерамической защитой
✅ Результат:
Двухэтажный штаб строительства на 20 человек площадью 177 м², полностью готовый к эксплуатации. Здание включает офисные помещения, переговорную, санузлы и внутреннюю лестницу, обеспечивая комфортные условия для работы инженерно-технического персонала и руководства на строительном объекте.