Офис (Административно-бытовой комплекс)
4 недели
5 дней
от 65000 м2
Изоляция
60/100/150
Отделка
ЛДСП/ГВЛВ/Металл
Высота
2591/2800/2960
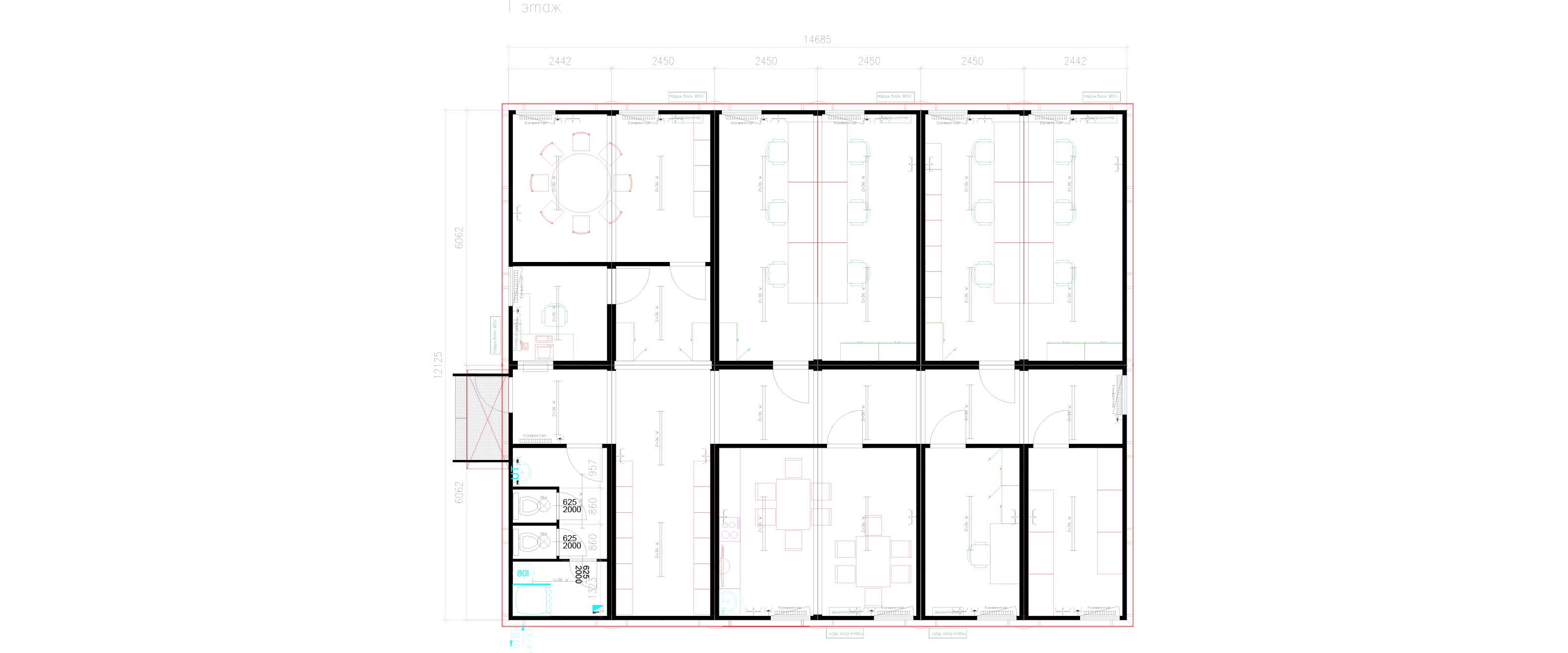
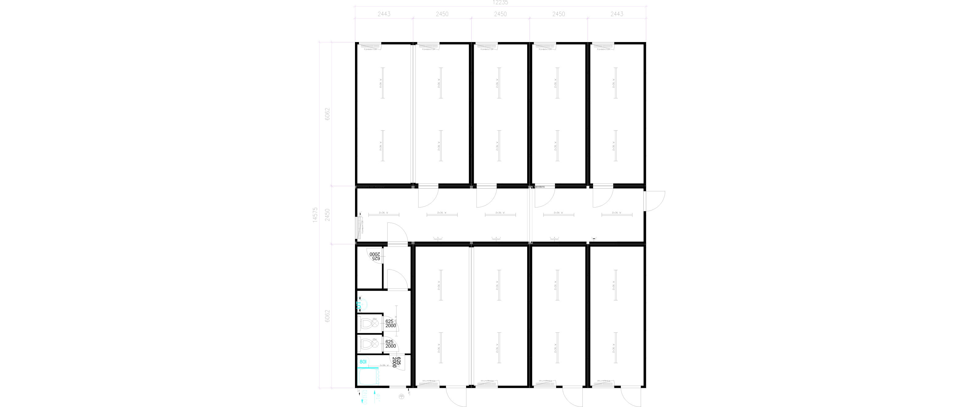
Модульный офис (административно-бытовой комплекс, АБК) из сборно-разборных блок-контейнеров Containex — это удобное и практичное решение для организации рабочего пространства на строительных площадках и производственных объектах. Конструкция рассчитана на 10 сотрудников и сочетает функциональность с комфортом.
Такой офис (АБК) подходит для:
Решение от Контейнекс — это современный и удобный офис (АБК) для 10 сотрудников, который сочетает надежность модульных конструкций и комфорт полноценного рабочего пространства.
Полная Готовность
Экологические Материалы
Регионы -50°С до +50°С
Сертификаты СЭЗ, СС, ПБ
100% Сборно-Разборные
Срок Эксплуатации 20 лет
Степень Огнестойкости 3
8 Штук На 1 Машине
Гарантия 1 Год



+7 925 900-69-60
sb@contegra.ru
Штаб строительства

4 недели
Пешеходная галерея

4 недели
Штаб строительтсва

4 недели