Штаб строительства
4-5 недель
до 20 дней
от 60 588 за м2
Изоляция
60/100/150
Отделка
ЛДСП/ГВЛВ/Металл
Высота
2591/2800/2960
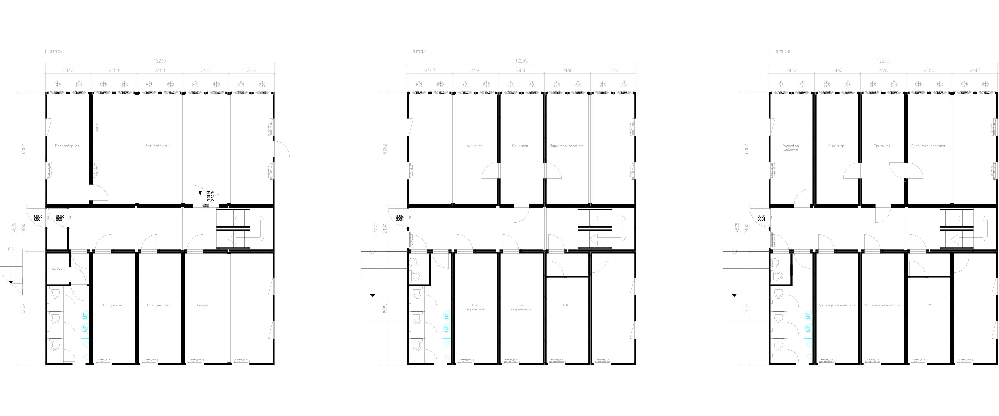
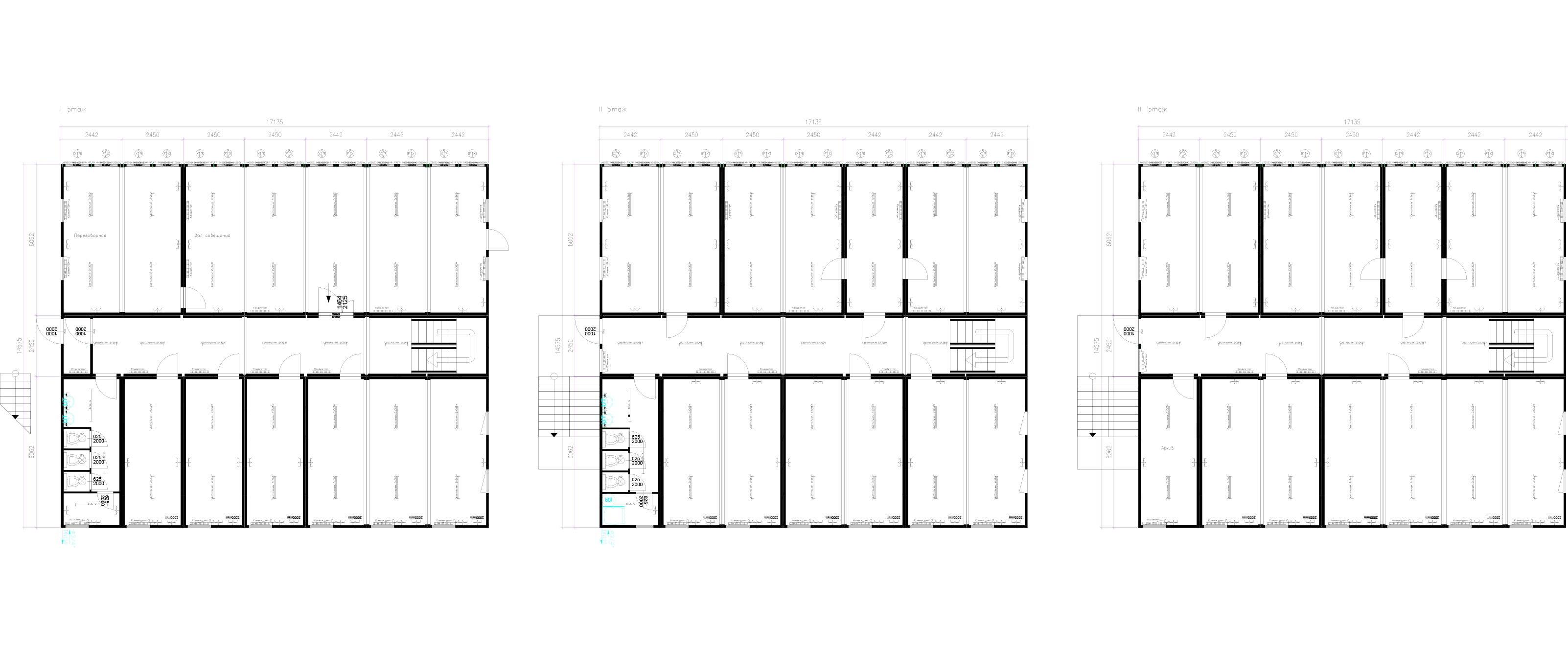
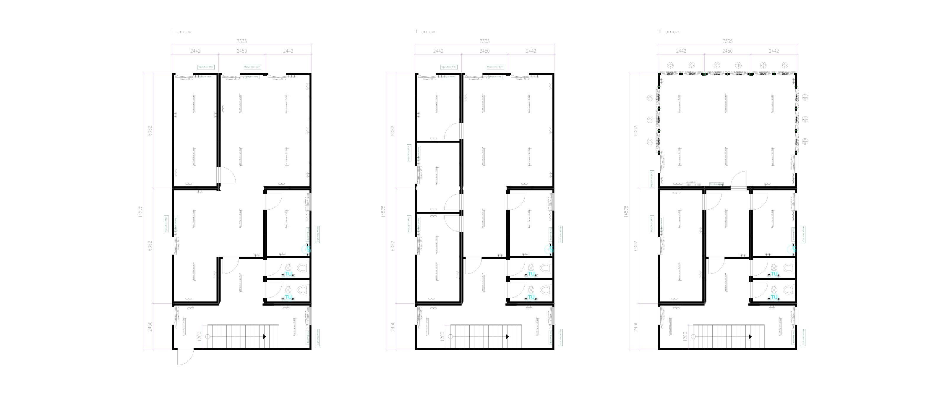
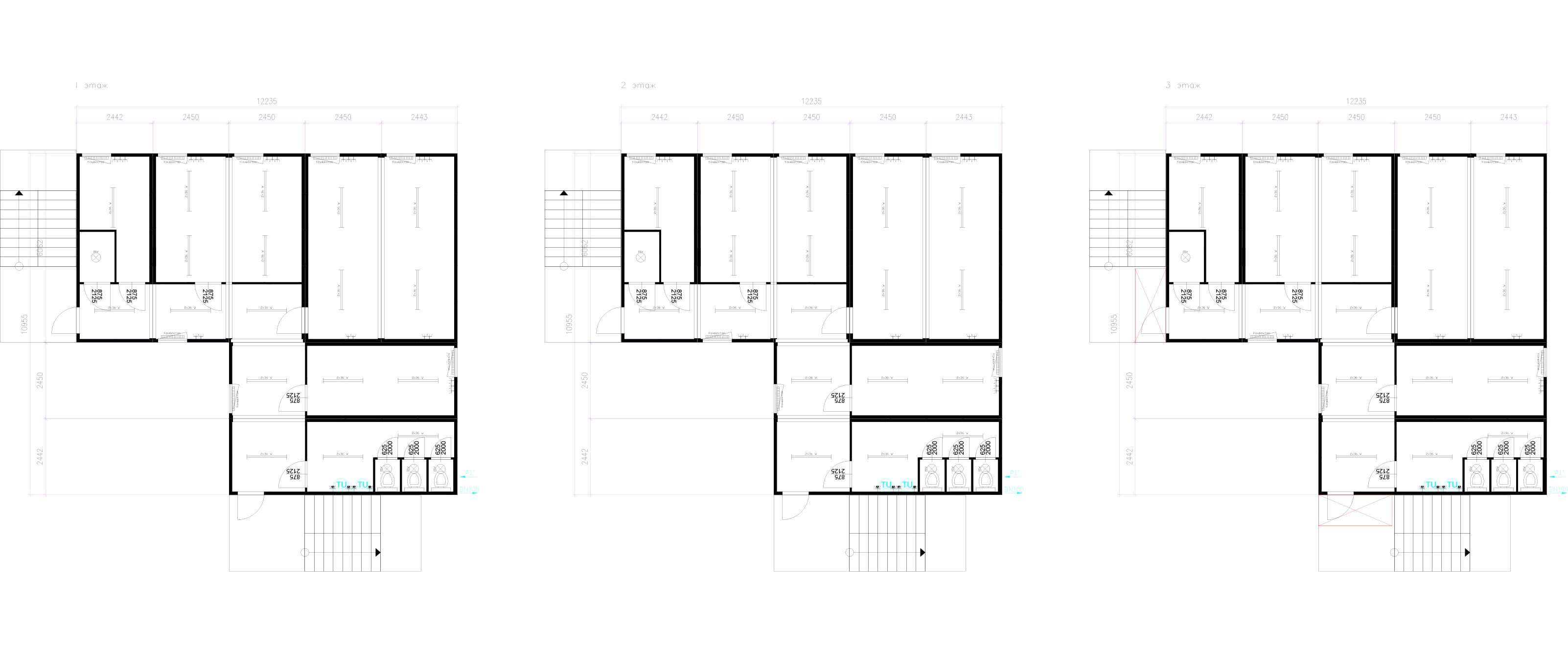
Штаб строительства из сборно-разборных блок-контейнеров Containex — это современное офисное решение для крупных строительных проектов. Здание рассчитано на 30 сотрудников и обеспечивает комфортное рабочее пространство для инженеров, менеджеров и административного персонала.
Такой штаб идеально подходит для:
Решение от Контейнекс — это надежный и удобный штаб строительства, который совмещает практичность модульных конструкций и комфорт стационарного офиса.
Полная Готовность
Экологические Материалы
Регионы -50°С до +50°С
Сертификаты СЭЗ, СС, ПБ
100% Сборно-Разборные
Срок Эксплуатации 20 лет
Степень Огнестойкости 3
8 Штук На 1 Машине
Гарантия 1 Год



+7 925 900-69-60
sb@contegra.ru
Штаб строительства

4 недели
Пешеходная галерея

4 недели
Штаб строительтсва

4 недели