Штаб строительтсва
4 недели
10 дней
от 58000 м2
Изоляция
60/100/150
Отделка
ЛДСП/ГВЛВ/Металл
Высота
2591/2800/2960
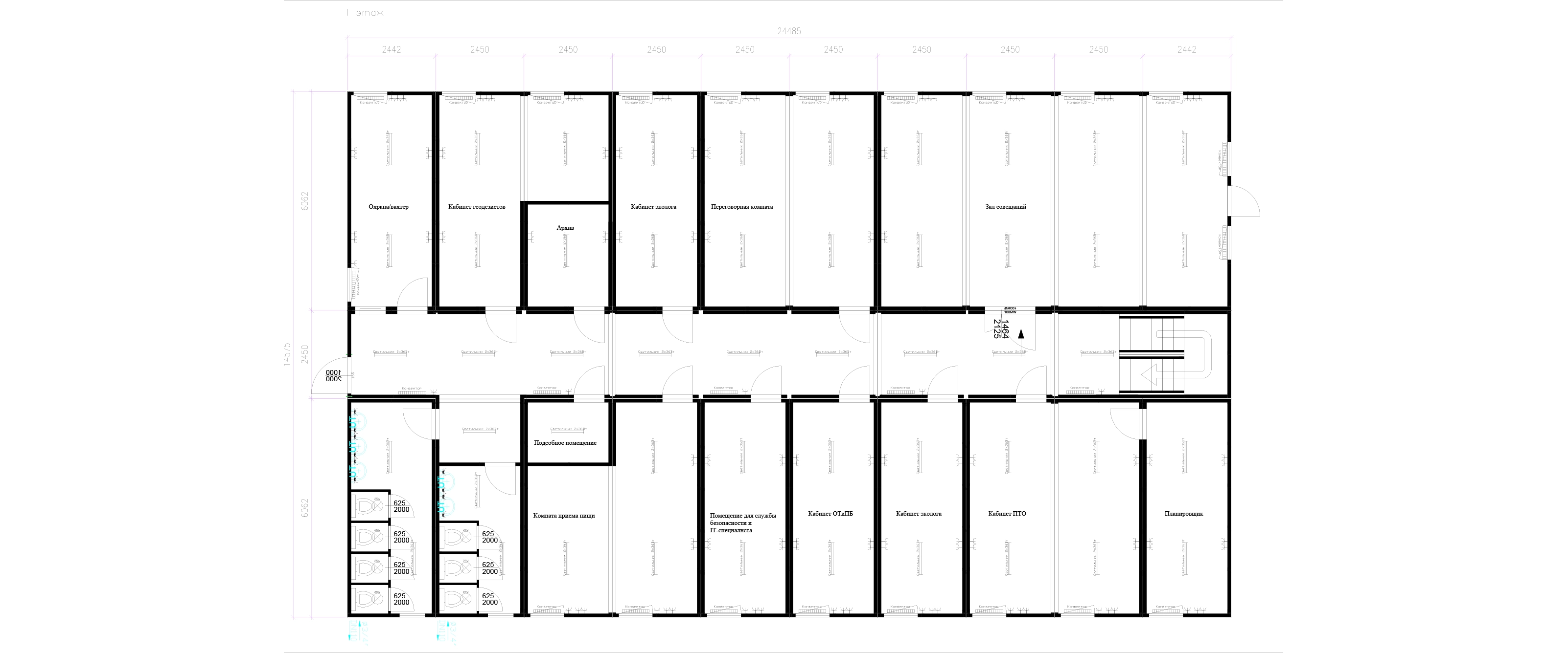
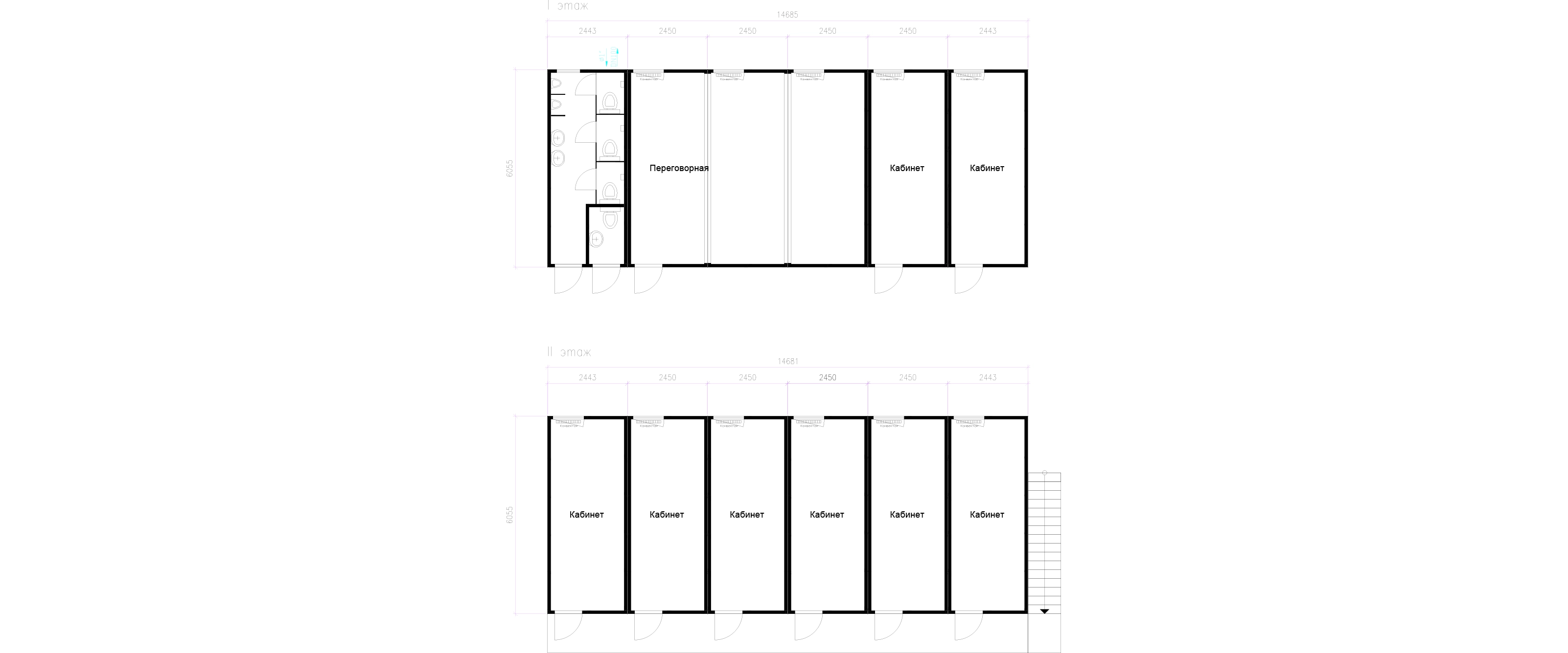
Штаб строительства из сборно-разборных блок-контейнеров Containex — оптимальное решение для организации офиса на строительной площадке. Конструкция рассчитана на 20 сотрудников и обеспечивает полноценное рабочее пространство для инженерного состава и управленческого персонала.
Такой штаб отлично подходит для:
Решение от Контейнекс — это функциональный и удобный штаб строительства, который сочетает мобильность, надежность и комфорт современных офисных помещений.
Полная Готовность
Экологические Материалы
Регионы -50°С до +50°С
Сертификаты СЭЗ, СС, ПБ
100% Сборно-Разборные
Срок Эксплуатации 20 лет
Степень Огнестойкости 3
8 Штук На 1 Машине
Гарантия 1 Год



+7 925 900-69-60
sb@contegra.ru
Штаб строительства

4 недели
Пешеходная галерея

4 недели
Штаб строительтсва

4 недели