Столовая
4-5 недель
до 20 дней
от 65000 м2
Изоляция
60/100/150
Отделка
ЛДСП/ГВЛВ/Металл
Высота
2591/2800/2960
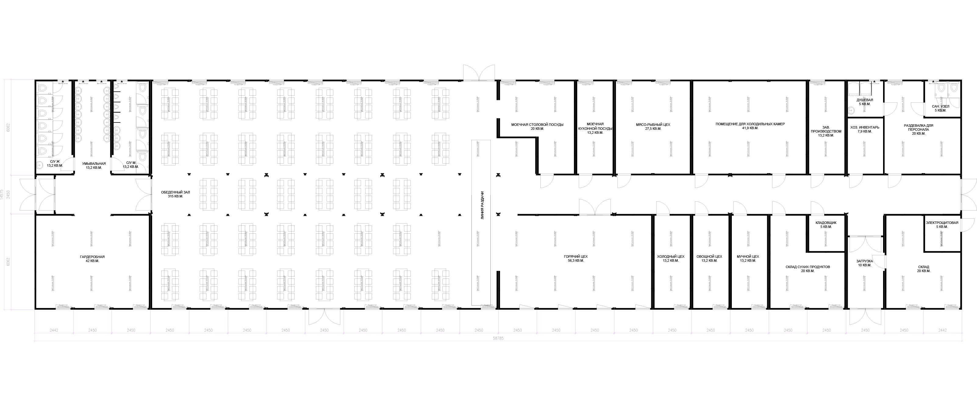
Модульная столовая из сборно-разборных блок-контейнеров Containex — это современное решение для организации питания большого количества сотрудников на строительных и промышленных объектах.
Здание рассчитано на 300 человек и обеспечивает комфорт, санитарную безопасность и высокую пропускную способность при компактных габаритах и быстрых сроках возведения.
Такое модульное здание идеально подходит для:
Решение от Контейнекс — это современная модульная столовая на 300 человек, спроектированная с учётом всех санитарных и эксплуатационных требований.
Здание сочетает в себе функциональность, надёжность и комфорт, обеспечивая полноценную систему питания для персонала на любом объекте.
Полная Готовность
Экологические Материалы
Регионы -50°С до +50°С
Сертификаты СЭЗ, СС, ПБ
100% Сборно-Разборные
Срок Эксплуатации 20 лет
Степень Огнестойкости 3
8 Штук На 1 Машине
Гарантия 1 Год



+7 925 900-69-60
sb@contegra.ru
Штаб строительства

4 недели
Пешеходная галерея

4 недели
Штаб строительтсва

4 недели